Designed for Living, Built for Tomorrow

N$6,200,000
Property Details

PLOT & PLAN

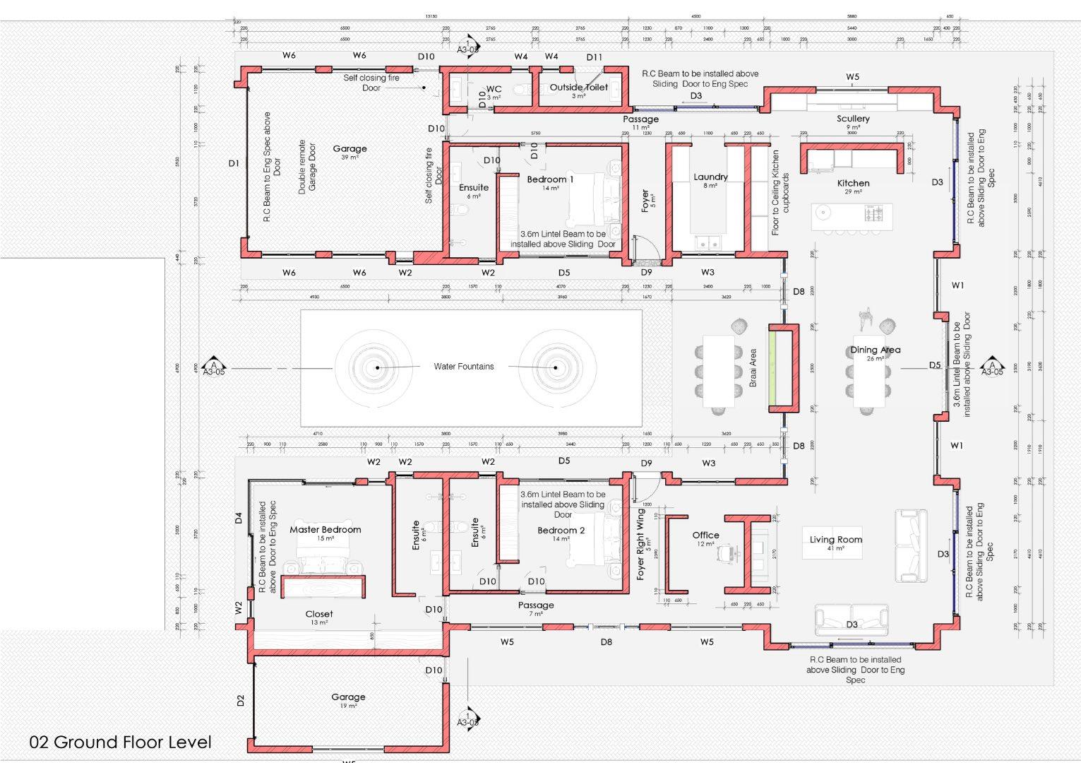
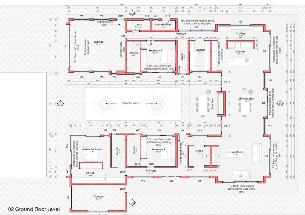
This modern design offers a thoughtfully designed layout ideal for comfortable family living.

The property features; 3 bedrooms and 3 bathrooms, including a master bedroom with a private en-suite bathroom.

The home boasts an open-plan design that seamlessly connects the kitchen, dining room, and living area, creating a welcoming and functional space for everyday living and entertaining. A separate scullery adds convenience and keeps the main kitchen area clutter-free.

Additional features include a dedicated office corner, perfect for working from home, as well as a braai area for outdoor entertaining. The property also includes a laundry room and an outside toilet for added practicality.

Once completed, this home will combine modern style with functional living spaces, making it an excellent choice for families or anyone seeking a well-designed, contemporary residence.

Contact Versatile today! Our team of experienced professionals are ready to assist you every step of the way, ensuring a smooth and seamless process.

Property Features
Property Type
House
Bedrooms
3
Bathrooms
3
Garages
3
Floor Size
290m²
Land Size
971m²
Living Area
1
Study
1
Location
Swakopmund view
About Swakopmund
Welcome to Swakopmund, the hidden gem of Namibia! If you're on the lookout for a picturesque location to invest in, Swakopmund is the perfect choice.
Make an enquiry
Interested in this property? Please fill in your details below, and we will contact you as soon as possible.
By clicking on "submit" you agree to our privacy policy.
Property Alerts
Receive email alerts for properties matching your criteria.
You may also be interested in these properties
N$ 4,900,000
House for sale in Mile 4 Ext 1
Just Listed
Brand New Modern Home In Mile 4, Swakopmund
Embrace effortless indoor-outdoor living on Emerald Street with a private 36 sqm courtyard and braai — ideal for entertaining. Three ensuite bedrooms, double garage and separate backyard entrance.
3
3
2
250m²
800m²
N$ 5,400,000
House for sale in Ocean View
Brand New Modern Home In Sought After Extension 9
Coastal entertainer's retreat in Extension 9, Ocean View — seamless indoor-outdoor living around a central courtyard and fire pit, gourmet stone-top kitchen, plus 2-bed independent flat.
5
4
3
363m²
1,120m²
N$ 7,700,000
House for sale in Rossmund Golf Resort
Architecturally Designed Family Home With Private Flat – Rossmund Golf Estate, Swakopmund. Under Construction
Tranquil golf-estate living with sweeping fairway and desert views in Rossmund; seamless indoor–outdoor flow, private pool and enclosed entertainment area. Four bedrooms, four bathrooms, triple garage.
4
4
3
486m²
1,251m²